Structural frame elements
Columns
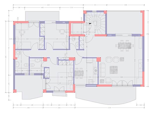
Floor plan with the vertical load bearing elements highlighted
The vertical load bearing elements of the structural frame are usually called with a common name: “columns”.
3D display of storey columns
Due to their varied behaviour, their
different design rules and most of all, their differences in
reinforcement and detailing, they are separated into three major
categories namely columns, shear walls and composite elements.
Rectangular columns
As Columns are defined the rectangular elements in which the larger dimension
of their cross-section is less than 4 times the smaller dimension
e.g. 400/400, 400/600, 250/900, etc. (dimensions in mm).
Various column types
The columns category also comprises
circular sections, for example D=500 and quadrilateral sections like
500/600 with an inside angle equal to 60˚.
Various column types
The columns category may also include elements with “L”, “T” or “Z”
cross-sections, in which the dimension ratio of their orthogonal parts
is lesser than 4 e.g. “Ξ” cross-section 400/800/250/250, “T”
cross-section 700/500/250/250, “Z”cross-section 600/700/900/250, etc.
Shear walls
As Shear walls are defined the rectangular elements
with a length to thickness ratio greater or equal to 4 e.g.
cross-sections 1000/250, 1500/300.
Composite elements
As Composite elements
are defined the elements composed of one or more rectangular elements,
at least one of which must be a shear wall. Generally speaking and due
to the fact that the two ends of each shear wall are locally reinforced
as columns, a wall could be characterized as a composite element. For
example a wall with an ”L” cross-section 1200/1000/250/250, or an ”L”
cross-section 1200/700/250/250, elevator cores with or without flanges,
double elevator cores with a slope on one side etc are composite
elements.
When beams support slabs, they function together with the slab thus forming a “T” section beam. Depending on the relative levels of the slabs compared to the levels of the beams T beams are called common beams, inverted beams or “Z” beams.
However, in some cases one or both beam ends are supported by another beam (beam to beam connection) and in other cases only one end is supported by a column or beam while the other end has no support at all. The beam supported only in one end is called a cantilever.





Structural frame loading

Beams
Various beam types ‹project: beams›
Beams are the horizontal or inclined bearing elements of the structural system that connect columns and support slabs
When beams support slabs, they function together with the slab thus forming a “T” section beam. Depending on the relative levels of the slabs compared to the levels of the beams T beams are called common beams, inverted beams or “Z” beams.
Various beam types
Generally, beams are supported by columns (beam to column connection)
However, in some cases one or both beam ends are supported by another beam (beam to beam connection) and in other cases only one end is supported by a column or beam while the other end has no support at all. The beam supported only in one end is called a cantilever.
Slabs
Various slab types ‹project: slabs›
Slabs are surface plane elements that bear loads transverse to their plan
Slabs are statically indeterminate elements
therefore redistributing the stresses applied to them. This ability
makes them highly safe against bending and shear failure. Cantilever
slabs do not dispose of this property as they are statically determinate
elements and therefore need special care in their construction.
Hypothetical formwork plan, where the arrows indicate the supported sides of slabs
Depending on their support conditions, slabs are classified as follows:
One-way slabs (simply supported)
They are those supported on two out of four, opposite sides like S1 of the above example.
Two-way slabs
They are those supported on all four sides like S2, S3 of the above example
Cantilever slabs
They are those with a fixed support on only one out of four sides, like S4 of the above example.
Two-way slabs supported on three edges
They are those supported on three out of four sides, like S5 of the above example.
Two-way slabs supported on two adjacent edges
They are those supported on two adjacent sides, like S6 of the above example.
One-way slabs (simply supported)
They are those supported on two out of four, opposite sides like S1 of the above example.
Two-way slabs
They are those supported on all four sides like S2, S3 of the above example
Cantilever slabs
They are those with a fixed support on only one out of four sides, like S4 of the above example.
Two-way slabs supported on three edges
They are those supported on three out of four sides, like S5 of the above example.
Two-way slabs supported on two adjacent edges
They are those supported on two adjacent sides, like S6 of the above example.
Slab behaviour
The slab with the bilateral
continuity (a) behaves in the best way. Next comes the slab with the
unilateral continuity (b) while last comes the slab with no continuity
(c)
As regards to support, the safest slab is
the two-way slab and the most vulnerable one is the cantilever slab.
This happens because in a two-way slab, potential loss of one support
results in a two-way three support slab, while in the case of a
cantilever slab potential support loss results in collapse.
One–way ribbed slab ‹project: zoellner10›
Ribbed slabs (waffle slabs) (Zoellner, sandwich) can be used for large spans, like the one shown in the figure
A ribbed slab with total thickness of 300
mm may have a self-weight equal to 3.75kN/m², which corresponds to the
self-weight of a 150 mm thick solid slab.
Two–way ribbed (waffle) slab ‹project: zoellner20 ›
Usually two-way slabs have square voids between the ribs because the demand for adequate bending strength is equal in both directions
The square voids are being shaped either
using lightweight fillings like polystyrene or using plastic moulds. The
latter have significant constructive advantages (qualitative, fast
construction) thus providing economical solutions.
Stairs
3D display of a staircase
Although stairs are not part of the
structural load bearing frame, they affect and they are affected by its
behavior especially when horizontal loading is applied, mainly due to
seismic actions
If the staircases are both properly placed
in the structure’s plan and properly constructed they may even enhance
the structure’s antiseismic behavior.
Foundation
Foundation consisting of flexible and rigid spread footings (no connecting beams)
<project: Foundation10>
Foundations are meant to carry the structural frame loads to the underlying soil imposing a light compressive stress
Foundations are meant to carry the structural frame loads to the underlying soil imposing a light compressive stress
Foundation generally includes the footings and the pedestals.
The simplest type of foundation is the spread foundation (pad
foundation) i.e. isolated column footings. As a rule, spread footings
consist only of a box and they are usually called flexible. Sometimes
they may have a relatively large height and a sloped end, and they are
called rigid.
Spread footing section
Footing dimensions depend on the soil
quality and the loads transferred by the columns (column loads are
determined by the distance between the columns along with the number and
loads of the structure’s storeys). The usual footing dimensions range
from 1.0x1.0 m to 3.0x3.0 m although sometimes they may be larger and
their height varies between 0.5 and 1.0 m for flexible spread footings
and between 0.7 and 2.0 m for rigid spread footings.
Foundation consisting of flexible spread footings and connecting beams
<project: Foundation20>
In order to ensure the proper behavior of
the foundation, the use of foundation beams (connecting beams) is
mandatory. These beams tie together the column’s bases thus making the
footings behave in a even way especially during seismic incidents.
Usually their cross section width ranges from 300 and 500 mm and their
cross section height from 500 to 1500 mm.
Side view and plan of flexible spread footing
Footings are constructed symmetrically to their mass centre, except in those cases when due to building restrictions they are eccentrically constructed e.g. like boundaries of the building line or edge of the building land as shown below.
Foundation consisting of spread footings eccentrically constructed
<project: Foundation30>
The higher the footing’s construction eccentricity is, the strongest must the connecting beam in that direction should be.
Spread foundation (pad foundation) is used in a good quality soil. In case of low soil capacity strip foundation is used.
Spread foundation (pad foundation) is used in a good quality soil. In case of low soil capacity strip foundation is used.
Strip foundation with connecting beams
<project: Foundation040>
For a more effective behavior it is advisable to use grid foundation
For a more effective behavior it is advisable to use grid foundation
Section and plan of a footing beam
Strip foundation as an inverted T beam
consists of the web and the flange (the footing).
The usual dimensions of the footing vary between 400 to 600 mm for its
thickness and between 1000 to 2500 mm for its width. The typical web
cross sections range from 300x800 to 500x1500.
Raft Foundation with connecting beams
<project: Foundation50>
In poor soil conditions a slab which extends over the entire loaded area, the so called raft foundation,
is usually preferable. Frequently it is used in other soil conditions
for practical reasons basically because of its fast and easy
construction.
Raft foundation may have normal foundation beams as ribs, as shown in the above figure, or beams embedded into the foundation as hidden beams.
The usual thickness of a raft foundation, ranges from 400 to 1000 mm, while the dimension of the raft foundation beams vary from 300x800 to 500x2000 mm.
Raft foundation may have normal foundation beams as ribs, as shown in the above figure, or beams embedded into the foundation as hidden beams.
The usual thickness of a raft foundation, ranges from 400 to 1000 mm, while the dimension of the raft foundation beams vary from 300x800 to 500x2000 mm.
Two level foundation
<project: Foundation60>
Generally foundation should be preferably
placed at one single level. However, in certain cases such as for
example building on a sloped plot, foundation is placed on more than one
level.
Structural frame loading
Gravity Loadings
Building loads
In every building like the one shown in the
above figure, permanent (dead) and imposed (live) loads are applied.
The latter are much lower than the former, for example 3 persons and the
living-room furniture weight as much as a single m2 of slab surface
while a car weights as much as a sole beam.
Structure loads can be classified into three categories gravity loads,
seismic loads and wind loads.
Permanent and imposed loads
The structural frame is designed to
continuously withstand the vertical gravitational loads (self-weight,
masonry walls, floor coverings, cars, furniture, people etc) and, not in
a continuous but in a periodical basis, the wind and snow actions.
Moreover it must always bear the “self-induced” loadings caused by
temperature changes etc.
Apart from the usual loads, in earthquake prone regions, the structural frame must have enough strength surplus distributed in such a way so that in the critical moment of an earthquake, to be able to respond successfully, retaining the building intact.
Apart from the usual loads, in earthquake prone regions, the structural frame must have enough strength surplus distributed in such a way so that in the critical moment of an earthquake, to be able to respond successfully, retaining the building intact.
Dead loads – self-weight
The density and the related unit weight of the materials used in construction are:
Reinforced concrete Ο=2.50 t/m3 (Ξ΅=25.0 kN/m3)
Light- weight concrete for ground leveling Ο=0.80 t/m3 (Ξ΅=8.0 kN/m3)
Sand mortar Ο=2.00 t/m3 (Ξ΅=20.0 kN/m3)
Marble Ο=2.70 t/m3 (Ξ΅=27.0 kN/m3)
The dead mass of one m2 of the above slab is,
g = 0.15*2.50 + 0.04*0.8 + 0.02*2.0 + 0.02*2.7 = 0.5 t,
i.e. the self mass of one square meter of a usual slab is 0.5 t (weight 5.0 kN)
Reinforced concrete Ο=2.50 t/m3 (Ξ΅=25.0 kN/m3)
Light- weight concrete for ground leveling Ο=0.80 t/m3 (Ξ΅=8.0 kN/m3)
Sand mortar Ο=2.00 t/m3 (Ξ΅=20.0 kN/m3)
Marble Ο=2.70 t/m3 (Ξ΅=27.0 kN/m3)
The dead mass of one m2 of the above slab is,
g = 0.15*2.50 + 0.04*0.8 + 0.02*2.0 + 0.02*2.7 = 0.5 t,
i.e. the self mass of one square meter of a usual slab is 0.5 t (weight 5.0 kN)
Dead loads – water
Ο = 1.00 t/ m3 (Ξ΅ = 10.0 kN/m3)
The dead mass of one m2 of a pool slab, when the pool is filled with just 1.0 m of water is,
1.4 t (weight 14.0 kN)
The dead mass of one m2 of a pool slab, when the pool is filled with just 1.0 m of water is,
1.4 t (weight 14.0 kN)
Dead loads – garden soil
Ο = 2.50 t/m3 (Ξ΅ = 25.0 kN/m3)
The dead mass of one m2 of a slab, with 1.0 m of soil on top is 2.5 t (weight 25.0 kN)
The dead mass of one m2 of a slab, with 1.0 m of soil on top is 2.5 t (weight 25.0 kN)
Dead loads – masonry
Masonry stretcher bond Ο = 0.21 t/m² (Ξ΅ = 2.1 kN/m²)
Masonry Flemish bond Ο = 0.36 t/m² (Ξ΅ = 3.6 kN/m²)
Masonry Flemish bond Ο = 0.36 t/m² (Ξ΅ = 3.6 kN/m²)
A wall of 1.00 m length, 2.85 m height and 100 mm thickness has a mass equal to 0.6 t. (weight 6.0 kN).
Live loads – normal human loading
Ο = 0.20 t/m² (Ξ΅ = 2.0 kN/m²)
The live mass of one m2 residential building is 0.2 t (weight 2.0 kN)
The live mass of one m2 residential building is 0.2 t (weight 2.0 kN)
Live loads - humans concentration
Ο = 0.50 t/m² (Ξ΅ = 5.0 kN/m²)
The live mass of one m² commercial area is 0.5 t (weight 5.0 kN)
The live mass of one m² commercial area is 0.5 t (weight 5.0 kN)
As a rule, snow loading is lower than the
live load generated by the use of people and its value ranges between
0.60 and 1.50 kN/m².
Vehicle live loads
Ο = 0.25 t/m² (Ξ΅ = 2.5 kN/m²)
The live distributed load of 1 m² of a parking space is 0.25 t (weight 2.5 kN)
The live distributed load of 1 m² of a parking space is 0.25 t (weight 2.5 kN)
Dead-live loads comparison
In a residential building, the maximum live loads are about 20% of the dead loads
Live loads during an earthquake
In random cases like earthquakes, the extensive live loads
may reach 6% of the dead loads
Seismic loads
The effect that a seismic action will have in a structure is determined by regarding an earthquake with horizontal design ground seismic acceleration equal to A=Ξ±*g
In the duration of an earthquake, a horizontal seismic force H is applied in every mass M that has gravity load W. The H force is equal to a percentage Ξ΅ of the W force. Ξ΅ value usually varies between 0.00 and 0.50 while in a very intense seismic action it may rise above 1.00.
Seismic acceleration distribution
In general terms, the distribution of seismic accelerations has the form of a triangle.
The structure shown above belongs to the
Seismic Zone Z1 (seismic ground acceleration equal to 0.16), the mean
value of the design seismic acceleration is around 0.12g (Ξ΅0=0.12) and
the resultant seismic force Fs is around 1400 kN. The theoretical height
that this force is applied to, is around the 2/3 of the structure’s
total height.
Comparison of wind forces Fw and seismic forces Fs
Comparing the wind and the seismic
forces applied to that structure we realize that the wind effect upon
the structure is at least four times smaller than the seismic effect
In the same structure, when placed in a
geographical region with intense winds, the mean value of the wind
pressure is around 1.50 kN/m² and the resultant force around 400 kN. The
total service load applied is 12.000 kN. Therefore the wind force is
equal to 0.03% of the vertical loads and its theoretical application
area is in the middle of the structure’s height.
Structural frame behaviour
Non-earthquake resistant structural frame
The frame of the figure comprises two columns and one beam and it bears only gravity loads i.e. no seismic loading is applied
Deformations of a non-earthquake resistant structural frame
The figure shows the concrete deformations and cracks. They are
presented in a very large scale to provide a thorough understanding of
the way the members behave. In reality they are so small that they are
not visible to the human eye.
The tensile stresses generated in some areas of concrete cause the formation of cracks; therefore in those areas the necessary reinforcement is placed. When the cracks are perpendicular to the axis of the member, longitudinal reinforcement is placed i.e. rebars that prevent the expansion of the hairline cracking.
When the cracks are diagonal, transverse reinforcement i.e. stirrups is placed to control them.
The tensile stresses generated in some areas of concrete cause the formation of cracks; therefore in those areas the necessary reinforcement is placed. When the cracks are perpendicular to the axis of the member, longitudinal reinforcement is placed i.e. rebars that prevent the expansion of the hairline cracking.
When the cracks are diagonal, transverse reinforcement i.e. stirrups is placed to control them.
One-bay earthquake resistant structural frame
<project: frame1>
An earthquake ground motion causes horizontal displacements that in
their turn cause horizontal inertia forces, forces created by the sudden
change in the kinetic state of the body.
During the seismic action the applied horizontal forces constantly shift direction. This fact results in a continuous change in the frame’s behavior and consequently the tensile stresses and thus the diagonal cracks appear in different positions and directions. This position- direction alteration is the reason why earthquake design and reinforcement detailing are so critical in areas with high seismic activity.
During the seismic action the applied horizontal forces constantly shift direction. This fact results in a continuous change in the frame’s behavior and consequently the tensile stresses and thus the diagonal cracks appear in different positions and directions. This position- direction alteration is the reason why earthquake design and reinforcement detailing are so critical in areas with high seismic activity.
Behaviour of a one-bay frame during an earthquake
No matter how well designed a
structure is, one or possibly more structural members will exceed their
design strength, either because seismic forces might exceed the design
assumptions or because of local conditions during the construction.
1st Defense mechanism:
In case of an earthquake greater than the design earthquake we don’t
want failure (fracture) of any member even if it remains permanently
deformed, this means that we need ductile structural members.
2nd Defense mechanism: in the case of an extremely intense earthquake, where failure of some members is unavoidable, the elements that must not fail are the columns; this means that the columns must have sufficient capacity-overstrength.
In the second defense mechanism all failures must be flexural because of their ductile nature as opposed to shear failures that have a brittle behavior (i.e. sudden fracture
2nd Defense mechanism: in the case of an extremely intense earthquake, where failure of some members is unavoidable, the elements that must not fail are the columns; this means that the columns must have sufficient capacity-overstrength.
In the second defense mechanism all failures must be flexural because of their ductile nature as opposed to shear failures that have a brittle behavior (i.e. sudden fracture
Structural frame ductility
This figure illustrates a column with
cross-section 500x500 and three stirrups on every layer, required by
the Seismic Code to ensure ductility
Ductility is the ability of a
reinforced concrete member to sustain deformation after the loss of its
strength, without fracture.
Ductility i.e. the element’s deformation capability beyond its yielding point concerns flexure and presumes adequate shear strength. For this reason shear design is based on the elements capacity-overstrength so as to avoid potential shear failure.
Ductility i.e. the element’s deformation capability beyond its yielding point concerns flexure and presumes adequate shear strength. For this reason shear design is based on the elements capacity-overstrength so as to avoid potential shear failure.
Beam with ductility requirements
Basic rules for beam reinforcement:
(a) Rebars placed in the beams lower part must be equally well anchored as those placed in the upper part since tension and therefore the resulting transverse cracking, continuously change place during a seismic action and as a consequence in critical earthquakes, tensile stresses appear at the lower fibers of the supports.
(b) There must be plenty of strong transverse reinforcement consisting of dense and well-anchored stirrups because the high intensity of the diagonal stresses and thus the large inclined diagonal cracking, shift direction during an earthquake.
Columns and beams usually fail in the joint area i.e. the area where the beam intersects with the column. Therefore columns and beams must be ductile in the joint area.
(a) Rebars placed in the beams lower part must be equally well anchored as those placed in the upper part since tension and therefore the resulting transverse cracking, continuously change place during a seismic action and as a consequence in critical earthquakes, tensile stresses appear at the lower fibers of the supports.
(b) There must be plenty of strong transverse reinforcement consisting of dense and well-anchored stirrups because the high intensity of the diagonal stresses and thus the large inclined diagonal cracking, shift direction during an earthquake.
Columns and beams usually fail in the joint area i.e. the area where the beam intersects with the column. Therefore columns and beams must be ductile in the joint area.
Beam with high ductility requirements
If all members of the structure system have
enough ductility the structure’s strength capacity will depend upon the
strength capacity of all the structural members, otherwise it will be
depended upon the strength capacity of the most vulnerable structural
member.
Slabs
Steel reinforcement
Reinforced concrete is made of two materials, concrete and reinforcement.
The reinforcement is usually made out of steel and, rarely, at least
for the time being, it is made out of composite materials, composites.
The reinforcement is divided into two basic categories: (a) the longitudinal reinforcement in the form of rebars and (b) the transverse reinforcement mainly in the form of stirrups.
The reinforcement is divided into two basic categories: (a) the longitudinal reinforcement in the form of rebars and (b) the transverse reinforcement mainly in the form of stirrups.
Behaviour and reinforcement of an one-way slab
Under loading (such as self weight, marble floor coverings, human
activities etc) and due to their elastic behaviour, slabs are deformed
as shown at the following figure. The real deformation is in the order
of millimeters and although it is not visible to the human eye it always
has this form.
Concrete has a high compressive strength; therefore in the compression
zone where there are only compressive stresses, no longitudinal
reinforcement is placed. On the contrary, concrete has a very low
tensile strength therefore in the slab’s tensile zone where there are
only tensile stresses, longitudinal reinforcement is placed.
/








Structural Frame ( Vol A- Construction And Detailing ) ~ Civil Engineering Knowledge >>>>> Download Now
ReplyDelete>>>>> Download Full
Structural Frame ( Vol A- Construction And Detailing ) ~ Civil Engineering Knowledge >>>>> Download LINK
>>>>> Download Now
Structural Frame ( Vol A- Construction And Detailing ) ~ Civil Engineering Knowledge >>>>> Download Full
>>>>> Download LINK Hh